Description
- Three bedroom semi detached
- Popular residential area ideal for first time buyers and family buyers
- Close to a wide range of local amenities
- Excellent transport links
- Move in condition
Bentley Road in the charming area of Denton, this delightful three-bedroom semi-detached house presents an excellent opportunity for first-time buyers and families alike looking for a property set within a generous plot, the property boasts a spacious garden, perfect for outdoor activities and relaxation, as well as ample parking for up to three vehicles.
The home is ideally located in a popular residential neighbourhood, ensuring that all local amenities are within easy reach. Families will appreciate the proximity to well-regarded schools, making the morning school run a breeze. Additionally, the property benefits from excellent transport links, providing convenient access to the wider Manchester area.
Inside, the house is presented in move-in condition, featuring a modern kitchen that is both functional and stylish, as well as a contemporary shower room. The spacious layout of the living areas allows for comfortable family living, while the three bedrooms offer plenty of space for rest and privacy.
This property combines modern comforts with the charm of a sizeable garden and a prime location. Whether you are looking to settle down or invest in a family home, this house on Bentley Road is sure to meet your needs and exceed your expectations. Don’t miss the chance to make this wonderful property your new home.
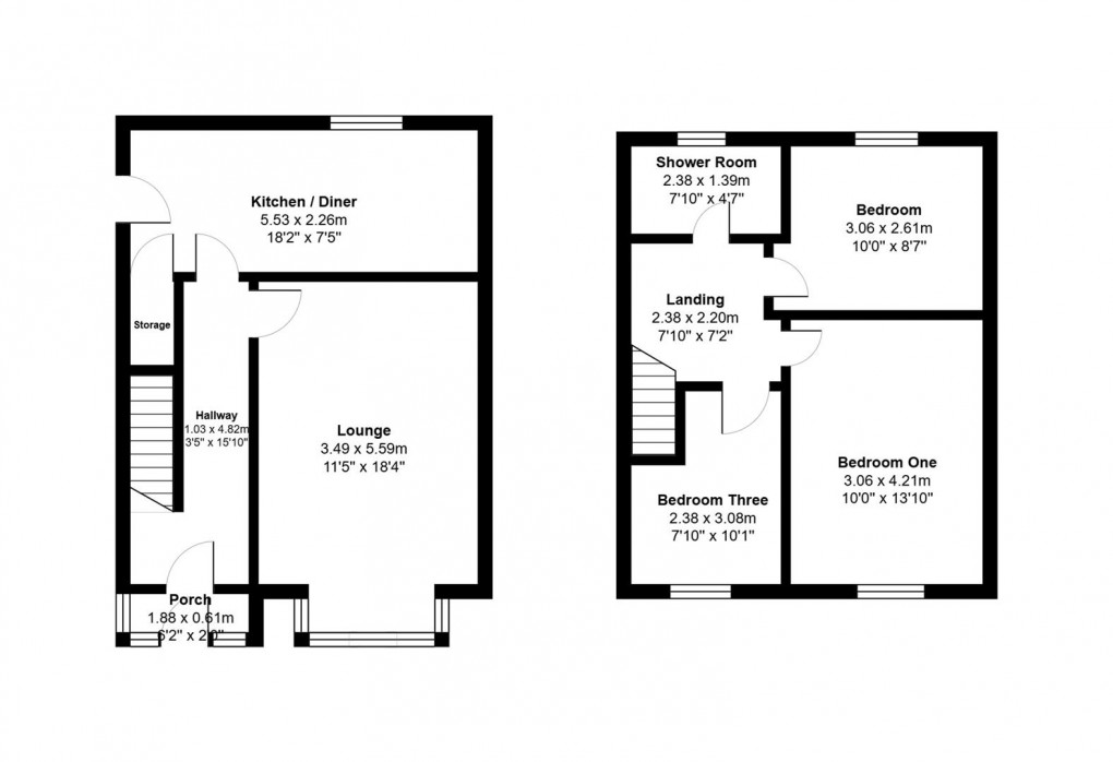
Floorplan
EPC
To discuss this property call us on:
Market your property
with My Property Club
Book a market appraisal for your property today.
