Description
- Two Bedroom Bungalow
- Haughton Green
- Well Presented Throughout
- Popular residential location
- Close to a range of local amenities
Set in a sought-after area this charming property on Newport Road, Denton, offers to the market this semi-detached bungalow that affords a delightful living experience. With two well-proportioned bedrooms, this property is perfect for a variety of buyers or those looking to downsize.
The bungalow is well presented throughout, boasting a modern decorative finish that creates a warm and inviting atmosphere. The spacious living areas are designed to maximise comfort and functionality, making it an ideal space for both relaxation and entertaining.
One of the standout features of this property is the lovely conservatory, complete with a heat roof, which allows for year-round enjoyment of the natural light and garden views. This additional space can be used as a cosy reading nook, a play area, or even a dining space, providing versatility to suit your lifestyle.
Situated close to all local amenities, this bungalow is conveniently located near shops, restaurants, and recreational facilities. Excellent transport links ensure easy access to the wider Manchester area, making commuting a breeze. Furthermore, the proximity to reputable schools adds to the appeal for families.
In summary, this two-bedroom semi-detached bungalow on Newport Road is a fantastic opportunity for those seeking a modern, well-maintained home in a desirable location. With its attractive features and convenient surroundings, it is sure to attract interest from a variety of buyers. Don’t miss the chance to make this lovely property your own.
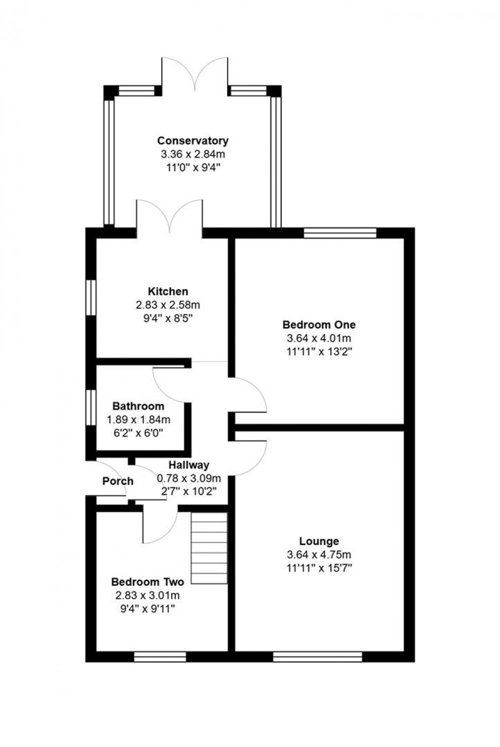
Floorplan
EPC
To discuss this property call us on:
Market your property
with My Property Club
Book a market appraisal for your property today.
