Description
Set in the popular residential area of Mottram, this attractive semi-detached house on Hillside Close offers a perfect blend of modern living and convenience.
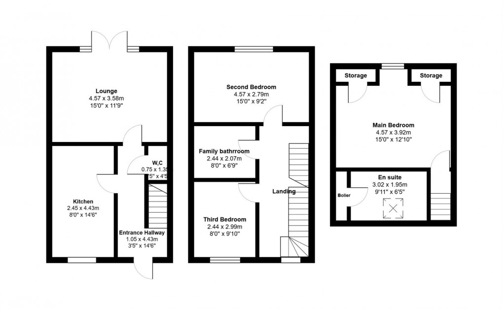
Spanning an impressive 1,033 square feet, this three-storey new build features three well-proportioned bedrooms and two contemporary bathrooms, making it an ideal home for families or professionals alike.
Upon entering, you are greeted by an entrance hallway, kitchen, WC and a reception room that provides a warm and inviting atmosphere, perfect for both relaxation and entertaining friends and guests.
The layout is thoughtfully designed to maximise space and light, ensuring a comfortable living experience. The property also benefits from parking for one vehicle, adding to the convenience of this lovely home.
One of the standout features of this property is its excellent transport links, making commuting a breeze. Whether you are heading to nearby towns or the city, you will find that accessibility is a key advantage of this location. Additionally, the area is served by well-regarded local schools, making it an attractive option for families seeking quality education for their children.
With no vendor chain, this property is ready for you to move in and make it your own.
If you are looking for a modern, spacious home in a popular area, this semi-detached house on Hillside Close is not to be missed. Embrace the opportunity to enjoy a comfortable lifestyle in a vibrant community.
Floorplan
To discuss this property call us on:
Market your property
with My Property Club
Book a market appraisal for your property today.
