Description
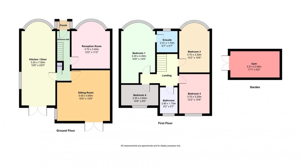
- FOUR BEDROOM DOUBLE FRONTED SEMI-DETACHED
- TWO RECEPTION ROOMS
- LARGE FAMILY KITCHEN
- FANTASTIC LOCATION
- GARDEN ROOM -GYM
Located in the desirable area of Aldwyn Park Road, Audenshaw, this fantastic double-fronted semi-detached house offers a perfect blend of comfort and style. With four well-proportioned bedrooms, this property is ideal for families seeking a spacious and inviting home.
Upon entering, you are greeted by two generous reception rooms, providing ample space for relaxation and entertaining. The lounge features elegant French doors that open into a secure and enclosed rear garden, creating a seamless connection between indoor and outdoor living. This garden is perfect for enjoying sunny afternoons or hosting gatherings with friends and family.
The heart of the home is the spacious kitchen diner, which also boasts French doors leading to a low-maintenance rear garden. This area is perfect for family meals and socialising, making it a delightful space for culinary creativity and family bonding.
The master bedroom is a true retreat, complete with fitted wardrobes and an en-suite bathroom, ensuring privacy and convenience. Additionally, the family bathroom serves the other bedrooms, providing ample facilities for all.
For those seeking extra space, the loft is a noteworthy feature, equipped with a reinforced floor, electric sockets, lights, and an isolator, offering potential for a variety of uses, whether it be a home office, playroom, or additional storage.
Brick built garden building with currently used a a fitness Gym, benefits from French Doors.
This property is not only a beautiful home but also benefits from its incredible location, making it a must-see for anyone looking to settle in Audenshaw. With its blend of modern living and practical features, this semi-detached house is ready to welcome its new owners.
Off road parking available .
Call My Property Club on 0161-850-9730 to arrange a viewing
Floorplan
EPC
To discuss this property call us on:
Market your property
with My Property Club
Book a market appraisal for your property today.
