Description
- Popular Location
- First Floor Flat
- One Bedroom
- Needs some TLC
- Parking Space
Welcome to this charming one-bedroom flat located in the heart of Broadhurst, Denton, Manchester. Situated on the first floor of a purpose-built building, this property offers a fantastic opportunity for those looking to create their dream living space.
Although in need of refurbishment, this flat presents a blank canvas for you to unleash your creativity and design a home tailored to your taste. The first floor location provides a sense of privacy and tranquillity, perfect for unwinding after a long day.
With one bedroom, this flat is ideal for individuals or couples seeking a cosy and manageable living space. The property's layout allows for easy furnishing and personalisation, making it a great investment for those looking to put their stamp on a property.
Located in the vibrant area of Broadhurst, Denton, you'll have access to a range of amenities, including shops, restaurants, and parks, all within easy reach. The bustling city of Manchester is also just a stone's throw away, offering endless opportunities for entertainment and leisure.
Don't miss out on the chance to transform this flat into your ideal home. Embrace the potential this property holds and envision the possibilities that await you in this charming corner of Manchester.
Call My Property Club on 0161-850-9730 to register your interest
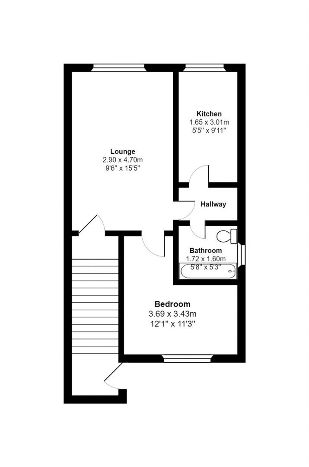
Floorplan
EPC
To discuss this property call us on:
Market your property
with My Property Club
Book a market appraisal for your property today.
