Description
- AVAILABLE JANUARY 17TH
- 2 BEDROOMS
- PARKING
- IMMACULATE INTERIOR
- EXCELLENT TRANSPORT LINKS
*** 2 BEDROOM LUXURY APARTMENT***
Two bedroom first floor apartment to rent in a prime residential area, the development is located just a short distance from Denton town centre with its wide variety of shops, and is just minutes from Crown Point North, a bustling shopping venue with many stores as well as cafés and restaurants.
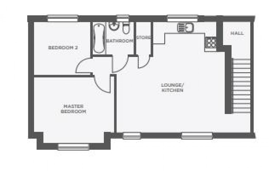
Large open plan lounge and kitchen area, two good size bedrooms and family bathroom and storage cupboard.
The average new build home tenant could save up to £2,600 a year on their household bills, compared to someone living in an older, less energy efficient property^.
Heating bills are an area where new build tenants often see the biggest cost saving. In a survey by the HBF, owners of new build homes found their heating bills to be 59% cheaper per year than those in an older home**. This saving will only become more significant once winter arrives and a closer eye is kept on the thermostat.
Floorplan
EPC
To discuss this property call us on:
Market your property
with My Property Club
Book a market appraisal for your property today.
